Stepscale Reviews replace manual reading, searching, and finding of issues across project documents, drawings, and invoices with AI-assisted Reviews built specifically for real estate teams.
Reviews built for real estate deliverables
Each Review cross-references your Project Files and location-specific context, so findings are relevant to your project, not generic.
Findings shown directly in the document
As you review, you’ll see the document side-by-side with AI findings organized by page and severity, giving you clear visibility into issues as you work. You can ask the Stepscale Assistant for clarification or deeper analysis on any finding at any time.
Easier and simpler start to Reviews
We’ve streamlined how Reviews begin and how past Reviews are accessed, so you can quickly start new Reviews, return to previous ones, and track important issues directly from the Home page.
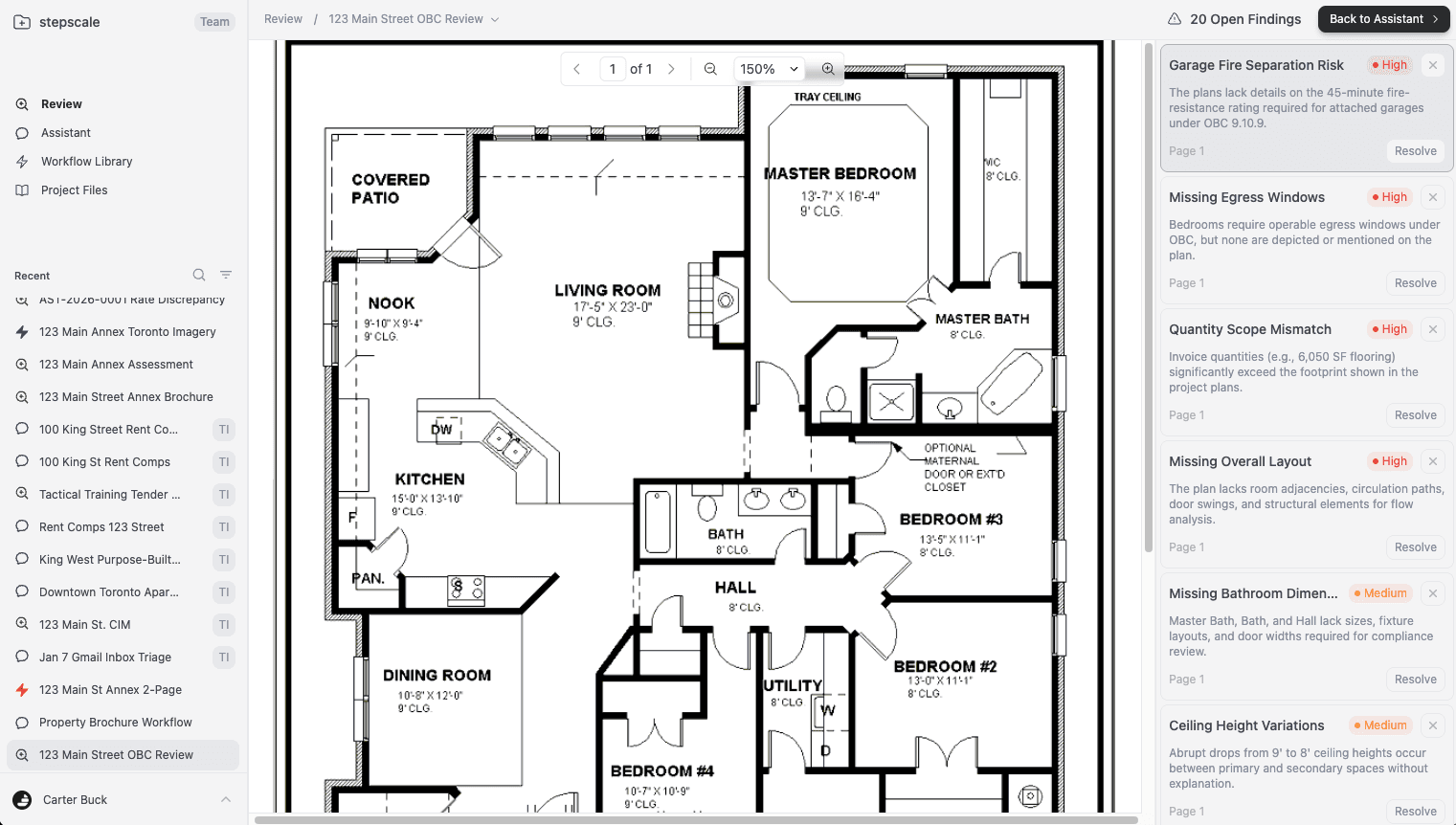
Stepscale Review flags findings directly on the architectural floor plan, so teams can jump to the exact sheet to review and resolve issues.
Stepscale Reviews surface findings directly on the sales comparables report, highlighting the exact lines to verify, so teams don’t waste time re-checking what’s already correct.
How this helps you
Spend less time searching for issues and more time making confident decisions.
See exactly where risks appear in your files before they turn into legal, financial, or construction problems.
Sign off knowing a thorough review was completed and important issues are visible, understood, and tracked.
If you're already using Stepscale, we would love to hear your feedback. If you're not using Stepscale yet, we'd love to show you>


